Lovliggørelse

Lovliggørelse af sommerhus

Denne reference omhandler et sommerhus, der var opført uden forudgående byggetilladelse. Opgaven bestod i at få ejendommen lovliggjort gennem udarbejdelse af nødvendigt tegningsmateriale samt håndtering af dialogen med kommunen.

Introduktion

Denne reference omhandler et sommerhus, der var opført uden forudgående byggetilladelse. Opgaven bestod i at få ejendommen lovliggjort gennem udarbejdelse af nødvendigt tegningsmateriale samt håndtering af dialogen med kommunen. Projektet krævede en struktureret tilgang til både dokumentation og myndighedsproces.

Projektbeskrivelse

Sommerhuset var allerede opført, men manglede den nødvendige godkendelse fra kommunen. Det betød, at bygningen formelt set var ulovlig, og at ejeren stod med en risiko i forhold til både påbud og fremtidig anvendelse eller salg.

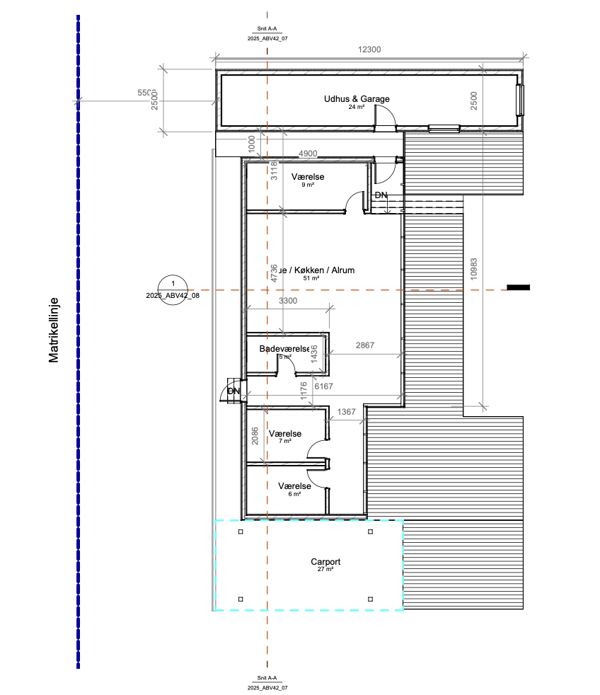
Opgaven startede med en gennemgang af det eksisterende byggeri, hvor relevante forhold blev registreret og vurderet i forhold til gældende regler. På baggrund af dette blev der udarbejdet et komplet tegningsgrundlag, herunder plantegninger, facader og situationsplan, som dokumenterede bygningens faktiske udformning.

Materialet blev tilpasset de krav, kommunen stiller i forbindelse med en lovliggørelsessag. Det omfattede blandt andet præcis angivelse af mål, afstande og bebyggelsens placering på grunden.

Myndighedsproces og resultat

Efter udarbejdelsen af tegningsmaterialet blev sagen indsendt til kommunen som en ansøgning om lovliggørende byggetilladelse. Dialogen med myndighederne blev håndteret løbende, herunder eventuelle tilretninger og supplerende dokumentation.

Processen resulterede i, at der blev opnået byggetilladelse med tilbagevirkende kraft, og sommerhuset blev dermed lovliggjort. Ejeren fik dermed afklaret sin situation og sikret, at bygningen fremover kan anvendes og omsættes uden juridiske udfordringer.

Afsluttende note

Projektet illustrerer, hvordan korrekt tegningsmateriale og en målrettet myndighedsproces kan føre til en succesfuld lovliggørelse af eksisterende byggeri. En systematisk tilgang til dokumentation og dialog med kommunen er afgørende for at opnå godkendelse i denne type sager.

Klar til at sætte dit projekt i gang?

Kontakt os for et gratis og uforpligtende tilbud.

Få et tilbud