Sommerhus

Nyt sommerhus i nordsjælland

Denne reference omhandler opførelsen af et nyt sommerhus i Nordsjælland, hvor der er arbejdet målrettet med at skabe en enkel og funktionel bolig tilpasset både grund og brug.

Denne reference omhandler opførelsen af et nyt sommerhus i Nordsjælland, hvor der er arbejdet målrettet med at skabe en enkel og funktionel bolig tilpasset både grund og brug. Projektet tager udgangspunkt i klassiske sommerhusprincipper kombineret med moderne løsninger og materialer.

Projektbeskrivelse

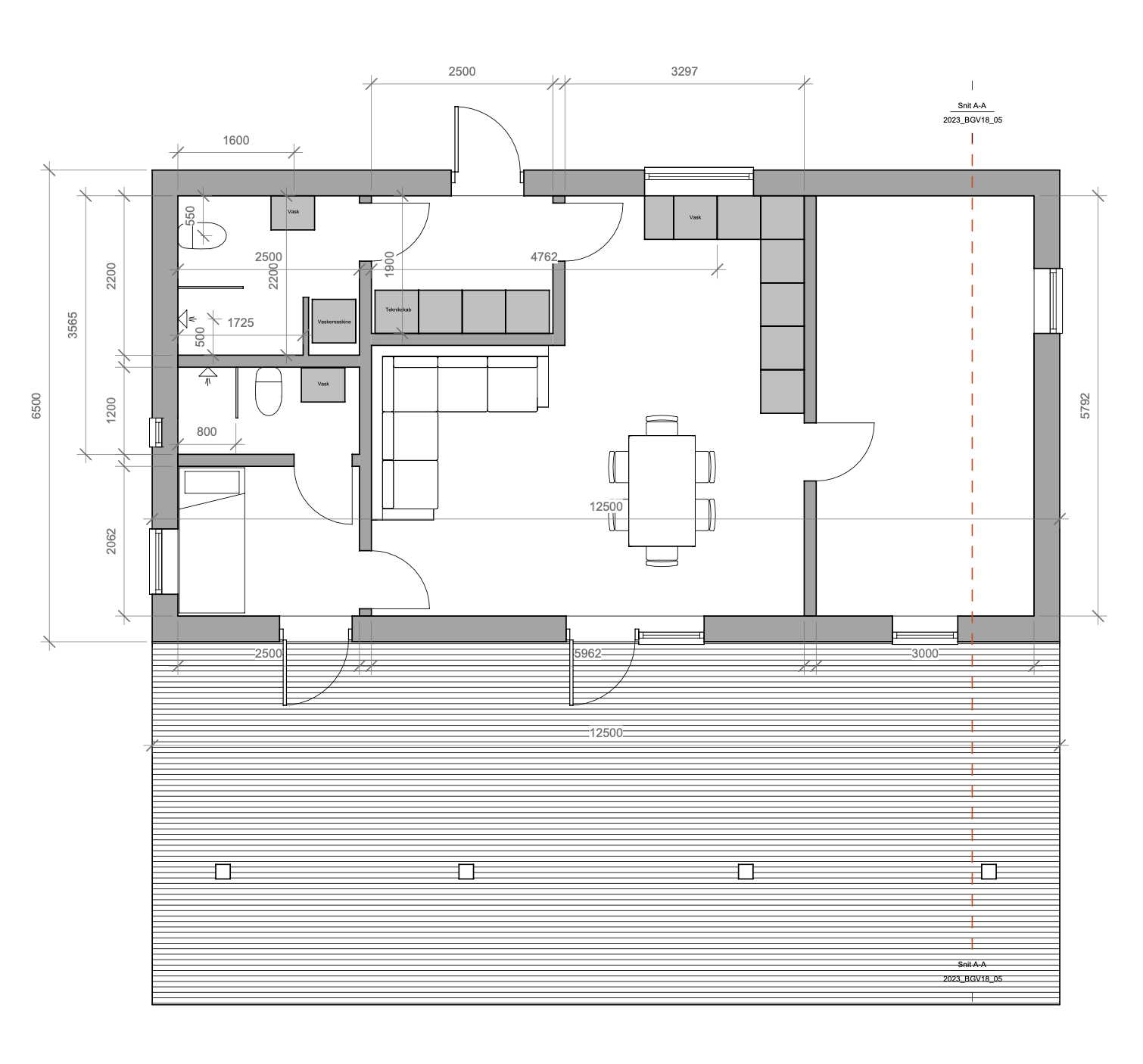
Sommerhuset er disponeret med fokus på en effektiv planløsning, hvor opholdsrum og køkken-alrum udgør boligens centrale samlingspunkt. Store vinduespartier sikrer et godt dagslysindfald og skaber en tæt forbindelse mellem inde og ude.

Boligen er organiseret, så de primære opholdsrum orienterer sig mod de bedste lys- og udsigtsforhold på grunden. Samtidig er der arbejdet med en klar opdeling mellem fællesarealer og private rum, hvilket giver en funktionel og fleksibel anvendelse.

Materialevalget understøtter et enkelt og robust udtryk, der harmonerer med omgivelserne. Der er lagt vægt på løsninger, som kræver minimal vedligeholdelse og samtidig bidrager til en lang levetid.

Proces og løsning

Projektet er udviklet fra de første skitser til færdigt tegningsmateriale med fokus på at sikre en sammenhæng mellem arkitektur, funktion og myndighedskrav. Tegningsgrundlaget har dannet basis for både projektering og udførelse, og der er løbende arbejdet med optimering af løsninger undervejs.

Der er i processen taget højde for gældende lokalplaner og byggeregler, så projektet kunne realiseres uden unødige forsinkelser.

Resultat

Resultatet er et moderne sommerhus, hvor planløsning, materialer og placering på grunden spiller sammen i en helhed. Boligen fremstår funktionel og velafstemt i forhold til både brug og omgivelser og danner en solid ramme for ophold og rekreation.

Så...

Projektet demonstrerer værdien af en gennemtænkt proces fra idé til færdigt byggeri. Med et klart fokus på funktion, kvalitet og kontekst er der skabt et sommerhus, der både opfylder praktiske behov og arkitektoniske ambitioner.

Klar til at sætte dit projekt i gang?

Kontakt os for et gratis og uforpligtende tilbud.

Få et tilbud